Festival d'Avignon OFF - espace Technique
jauge 200 places assises

L’espace scénique est un plancher de danse Salti recouvert d’un tapis de danse noir de 12m d’ouverture par 12m de profondeur (+50cm de coulisses sans tapis de chaque côté). Les pendrillons sont sur des perches mobiles, pour passer d'une boîte noire à l’italienne à une boîte noire à l'allemande entre deux créneaux. Une patience est installée à la face et une autre en fond de plateau.
La hauteur sous gril est de 5,50m
Le théâtre fournit aux compagnies faces et contres (Mac Aura) communs, et la diffusion son.
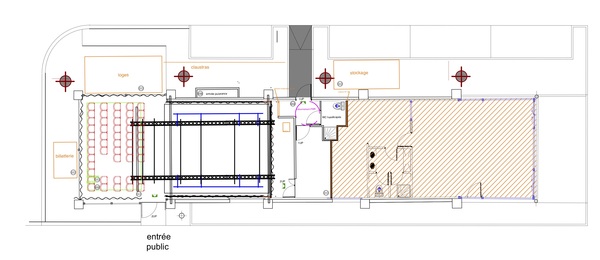
jauge 47 places assises

L’espace scénique est un plancher de danse recouvert d’un tapis de danse noir de 6m d’ouverture par 7m de profondeur. Les pendrillons le long du mur sont fixes et forment une boîte noire à l'allemande.
Un passage est possible derrière le rideau de fond.
La hauteur sous gril est de 3,30m
Le théâtre fournit aux compagnies faces et contres communs, et la diffusion son.
jauge 80 places

Le lieu est situé à 3 mn à pied de LaScierie Hangar et Studio. L'espace est de plain pied, à l'arrière des deux bâtiments, le sol est herbeux et damé, il comprend des arbres et des arbustes.








